CZECHY - Czeski Cieszyn - Lokal do wynajęcia - 272,2 m2
Cieszyn Pokaż na mapie ›
Odświeżone: Wtorek, 07 Październik, 2025 10:14
Szczegóły ogłoszenia
- Kategoria: Nieruchomości za granicą / Do wynajęcia
- Nieruchomość:Lokale i biura
- Sprzedaż:Bez pośredników
Opis oferty
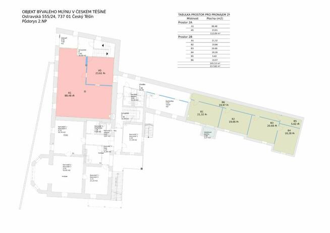
Odkryj idealne miejsce do działalności gospodarczej w Czechach!Oferujemy lokale komercyjne do wynajęcia w strategicznej lokalizacji - blisko granicy z Polską - wjazd na D48 a następnie na I/48 (E462) - Polska.
Lokale są po całkowitej rekonstrukcji - do aranżacji biura, sklepiku, punktu usług. Można wybrać z kilku wariant, z możliwością dostosowania przestrzeni wg potrzeb klienta - wymiar (2A+2B+ zaplecze sanitarne i aneks kuchenny z korytarzem) 272,2 m2.
Dodatkowe atuty: obiekt chroniony, parking na miejscu, internet - kabel optyczny, klimatyzacja, hol wejściowy, aneks kuchenny, własne zaplecze sanitarne.
Zainteresowany? Skontaktuj się! Można także przez WhatsApp.
Sprawdź zainteresowanie tym ogłoszeniem
Wyświetlenia
Data dodania
Ostatnio widziany
Obserwujących
Wysłane zapytania
Odsłony telefonu
STAVORENOL STAVEBNI s.r.o.
Konto firmowe
Na Lento.pl od 04 mar 2025
Strona użytkownika
- Wypromuj ogłoszenie
- Zgłoś naruszenie
- Drukuj ulotkę
- Edytuj/usuń ogłoszenie
- Udostępnij ogłoszenie
- Dodaj na Facebook





















