CZECHY - Czeski Cieszyn - Lokal do wynajęcia
Cieszyn Pokaż na mapie ›
Odświeżone: Poniedziałek, 01 Grudzień, 2025 08:16
Szczegóły ogłoszenia
- Kategoria: Nieruchomości za granicą / Do wynajęcia
- Nieruchomość:Lokale i biura
- Sprzedaż:Bez pośredników
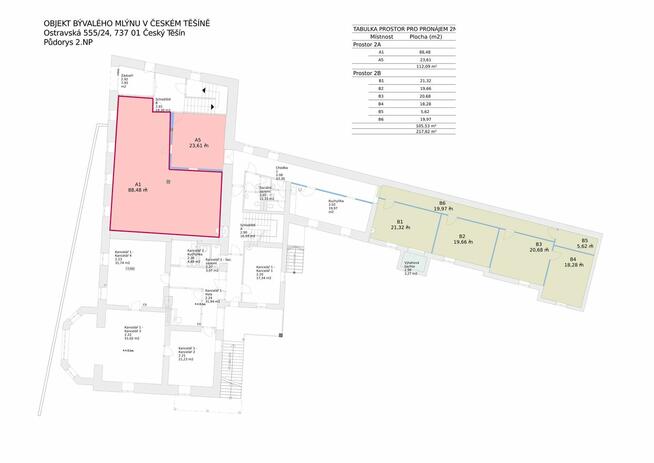
Opis oferty
Odkryj idealne miejsce do działalności gospodarczej w Czechach!Oferujemy lokal komercyjny do wynajęcia w strategicznej lokalizacji - blisko granicy z Polską - wjazd na D48 a następnie na I/48 (E462) - Polska.
Lokal jest po całkowitej rekonstrukcji - do aranżacji biura, punktu usług, sklepiku. Wymiar lokalu wynajmu (A1) - 88,48 m2.
Dodatkowe atuty: obiekt chroniony, parking na miejscu, internet - kabel optyczny, klimatyzacja, hol wejściowy, aneks kuchenny i zaplecze sanitarne.
Zainteresowany? Skontaktuj się! Można także przez WhatsApp.
Sprawdź zainteresowanie tym ogłoszeniem
Wyświetlenia
Data dodania
Ostatnio widziany
Obserwujących
Wysłane zapytania
Odsłony telefonu
STAVORENOL STAVEBNI s.r.o.
Konto firmowe
Na Lento.pl od 04 mar 2025
Strona użytkownika
- Wypromuj ogłoszenie
- Zgłoś naruszenie
- Drukuj ulotkę
- Edytuj/usuń ogłoszenie
- Udostępnij ogłoszenie
- Dodaj na Facebook













